Om Pentapart
Boligvælger – Pentapart
Om Teglbroen
Boligvælger – Teglbroen
Om Teglbyen
Boligvælger – Teglbyen
Om Teglholm Havnepark
Boligvælger – Teglholm Havnepark
Om West Coast Park
Boligvælger – West Coast Park
Video – West Coast Park
Nanna Kempf
Projektmægler, Ejendomsmægler, MDE
Email: ntk@edc.dk
Telefon: 21166216
EDC Projekt Poul Erik Bech
København
Email: 118@edc.dk
Telefon: 33307800
Leje
Bolig nr. 143
-
95m²
4 værelser
Plantegning
Vis på kort
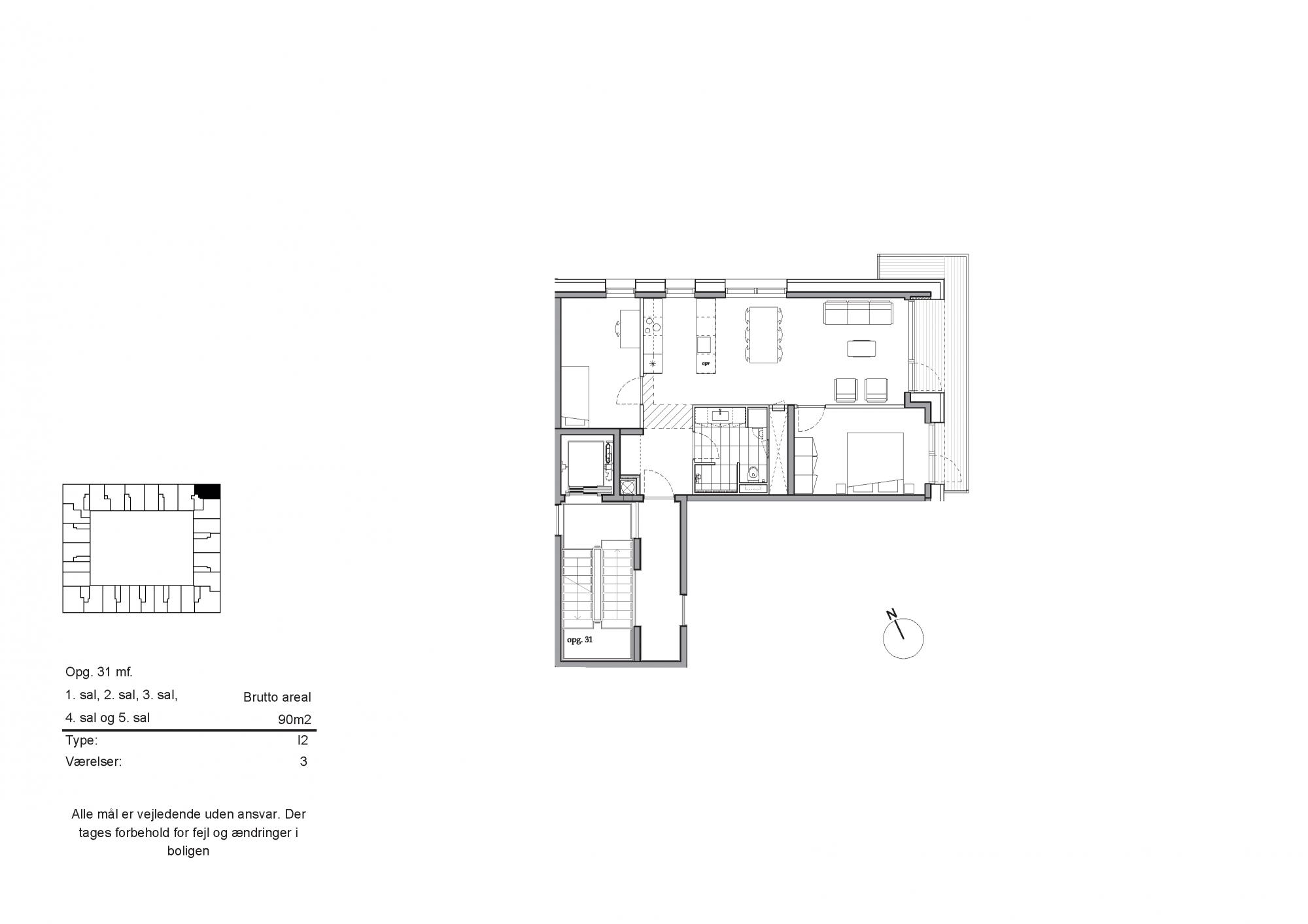
Teglbroen består af 177 lejligheder på 61 til 151 m2 og mellem 2 til 5 værelser. I lejligheder er der lagt stor vægt på, at skabe lyse og rummelige hjem med gode planløsninger. Alle boliger har terrasse, tagterrasse eller altan enten ind mod gården eller ud mod kanalerne og gangstierne.
Lejlighedernes køkken indrettet med hvide låger med greb og massiv træ bordplade. Dette skaber sammen med lejlighedernes massive parketgulv, varme og hygge til lejlighederne køkkenalrum. Køkkenet indeholder alle hårde hvidevare.
De fleste lejligheder har i forlængelse af køkkenet en dejlig stue med plads til sofahjørne. Herfra har nogle lejligheder udgang til lejlighedens uderum, samt lejlighedens værelser.
Badeværelserne har plads til at der kan installeres vaskemaskine og tørretumbler, og er som køkkenet med hvide låger med greb. Gulvet står i god kontrast til de hvide elementer, men deres mørkegrå farve som er med til at give en varme til rummet.
Teglbroen er beliggende i Sydhavnen, som består af Teglholmen, Enghave Brygge, Sluseholmen og Frederiks Brygge. Området er bygget op omkring små og store kanaler og der er rig mulighed for at udnytte disse fuldt ud.
Teglbroen er for alle og her får du mulighed for masser af luft, vand og hyggelige atmosfære omkring dig. Gå en tur mellem kanalerne, over de små broer og langs de flotte forskelligefarvede murstensbyggerier. Tag plads på en af caféerne og drik en varm kop kaffe på en kold vinter dag, eller et koldt glas vin på en varm sommeraften.
Med en lejlighed i Teglbroen har du let adgang til alle byens faciliteter og med den nye metro forbindelse i 2024, kan du komme til centrum på blot 5 min.
Du behøver dog ikke vente på metroen, for at komme hurtigt til centrum eller andre af byens attraktive tilbud. Med en cykel kan du komme til Fisketorvet på 6 min, Rådhuspladsen på 14 min, Kødbyen på 8 min eller Amager Fælled på 10 min. Eller du kan hoppe på bussen som kan køre dig til hovedbanegården på ca. 15 min.
Sagsnummer
11870143-2
Adresse
Dieselvej 30, 4. tv.
Salgsform
Ejendomstype
A3.2
Størrelse
Værelser
4
Balkon
Altan
Månedlig husleje
Depositum
Aconto
Status
Udlejet
Dato tilgængelig
3 måneders depositum + 1 måneds forudbetalt husleje, opkræves ved lejekontraktens underskrift.
Husleje for den første måneds husleje plus vand og varme, opkræves ved lejekontraktens underskrift.
Ubegrænset.
Vand og varme betales aconto pr. måned.
Lejestigning ifølge nettoprisindekset.
Fremvisning
Kontakt os
99m²
90m²
3 værelser
94m²
91m²